
Casino y Oficinas Administrativas
Cliente: Colbún
Quillota, Región de Valparaíso
Periodo: 2025
Casino y Oficinas Administrativas
Proyectos Sanitarios y Redes hidráulicas complementarias - Central Termoeléctrica Nehuenco
Presentación del proyecto
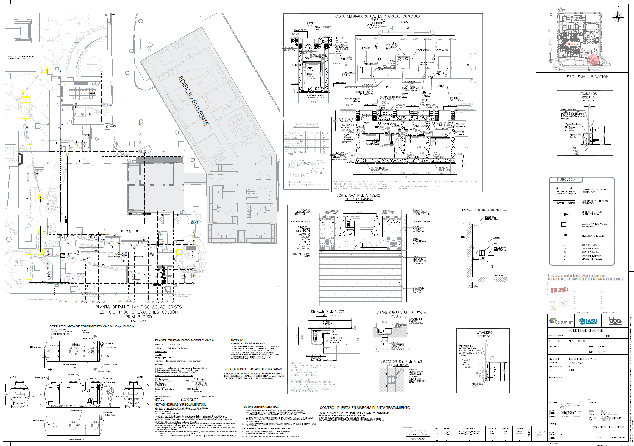
El proyecto contempla la construcción del nuevo Casino y Oficinas Administrativas de la Central Termoeléctrica Nehuenco, propiedad de Colbún S.A., ubicada en la comuna de Quillota, Región de Valparaíso.
La edificación considera dos niveles: el primero destinado a comedor con capacidad para 100 personas por turno, y el segundo a oficinas administrativas. Dado que la central cuenta con infraestructura sanitaria en operación, el nuevo edificio debía integrarse adecuadamente a las redes hidráulicas existentes.
Se desarrolló el diseño de los proyectos sanitarios correspondientes a las redes de agua potable, aguas servidas, aguas lluvias y red contra incendios, considerando su interconexión con las redes existentes de la central. Para ello, se definieron las cargas hidráulicas asociadas y las condiciones técnicas de conexión, asegurando una integración eficiente, funcional y conforme a la normativa sanitaria vigente.
Con el objetivo de optimizar el uso del recurso hídrico y aportar a la sostenibilidad del proyecto, se incorporó un sistema de reutilización de aguas grises mediante la recolección y tratamiento de aguas sin carga fecal, las cuales se destinan al sistema de riego del paisajismo, conforme a los usos permitidos por la normativa vigente.
Nuestros Proyectos
Todo proyecto comienza con una conversación














