
Casa Aracena
Cliente: Particular
Colina, Región Metropolitana
Periodo: 2024
Casa Aracena
Ampliación de Casa Habitacional
Presentación del proyecto
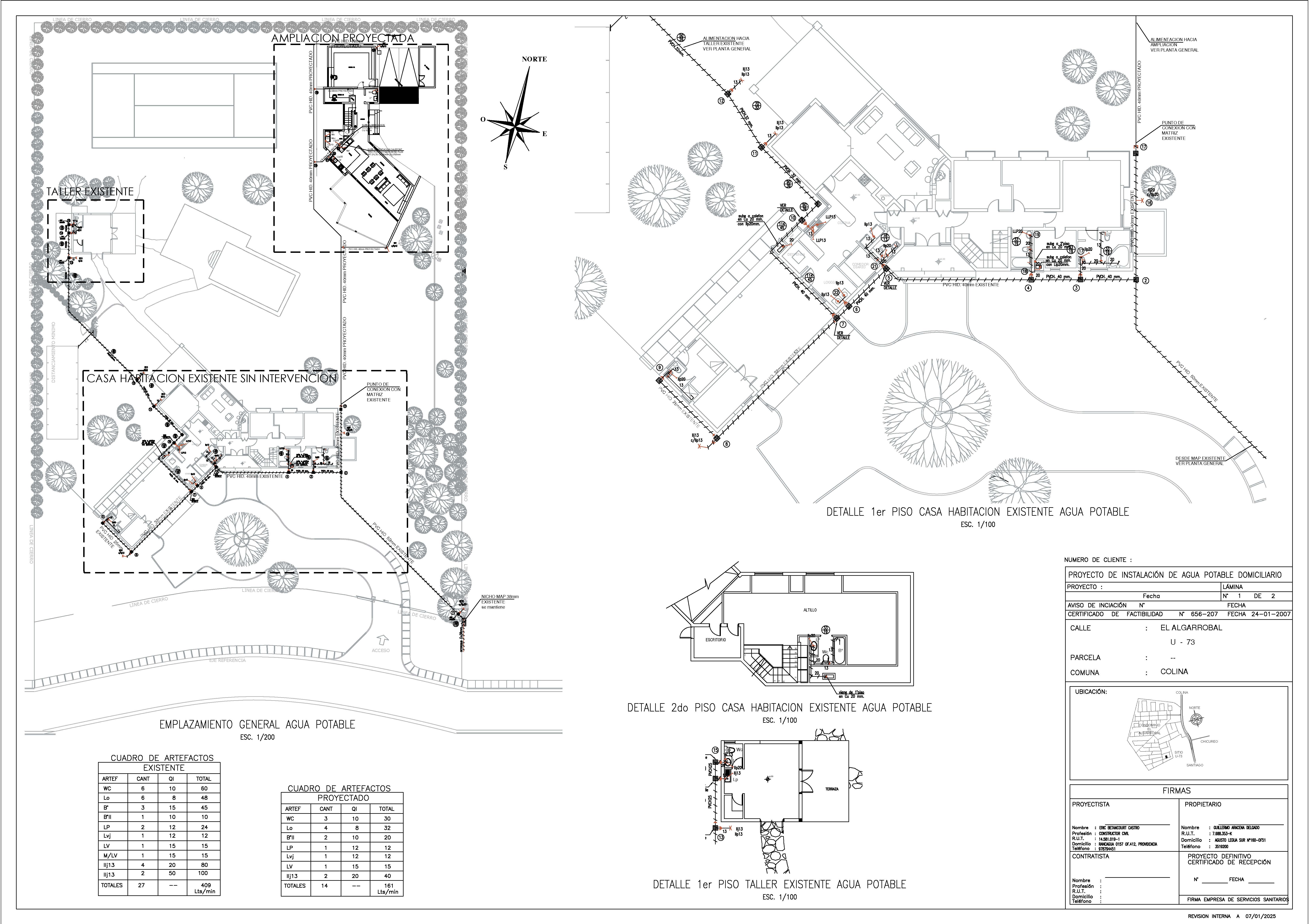
La vivienda, ubicada en el Sitio U-73 del Loteo El Algarrobal en la comuna de Colina, contempla la construcción de una nueva edificación dentro del mismo terreno, lo que implica la ampliación del sistema sanitario existente para dar cobertura a los nuevos recintos proyectados.
El servicio consistió en el diseño y la gestión integral del proyecto sanitario requerido para la ampliación de la vivienda, incorporando la extensión de la red interior de agua potable y la correcta interconexión de las nuevas descargas a la red de alcantarillado existente del inmueble.
El desarrollo del proyecto contempló el levantamiento de las instalaciones sanitarias existentes, la elaboración de la planimetría correspondiente y la confección de la documentación técnica requerida para su tramitación ante la autoridad sanitaria. El proceso fue gestionado de forma integral, acompañando cada etapa hasta la obtención de la resolución sanitaria favorable.
Nuestros Proyectos
Todo proyecto comienza con una conversación














